Fazemos uma análise completa da sua necessidade e das ideias que você tem para o projeto do seu empreendimento. A partir disso, desenvolvemos um plano personalizado contemplando tudo que você precisa, otimizado para sua operação poder ser 100% fluida.
Levamos em consideração tudo que é necessário para o melhor funcionamento e a melhor gestão do seu galpão, centro de distribuição, dark store ou qualquer outro empreendimento logístico.
Nosso foco é na máxima eficiência do projeto para a máxima eficiência dos resultados da sua marca.
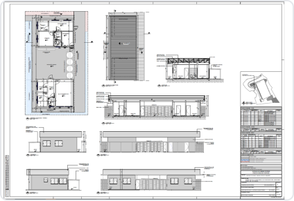
Plantas baixas, cortes, fachadas e elevações técnicas que definem precisamente o que será construído.
Colocamos suas ideias e necessidades em prática com um masterplan personalizado para sua demanda. O masterplan é o momento de dar vida ao projeto, de distorcer a realidade e enxergar o futuro.
Entregamos toda a expertise da Smart Duo para chegar na melhor proposta para o seu terreno. Geralmente criamos pelo menos 3 opções que vão ser discutidas em conjunto com o cliente até chegarmos no desenho final, que servirá de base para o desenvolvimento do anteprojeto.
Avenida Raja Gabaglia, 2000
Torre 1, Sala 807 – Estoril – Belo Horizonte – MG
CEP: 30494-170
contato@smartduoarquitetura.com.br
Copyright © 2023 Smart Duo. Todos os direitos reservados. Desenvolvido por California Co.